2120 ROBINS LN SE #26 Salem, OR 97306

Open House
Sun Apr 12, 1:00pm - 3:00pm
UPDATED:
Key Details
Property Type Manufactured Home
Sub Type Manufactured Homein Park
Listing Status Active
Purchase Type For Sale
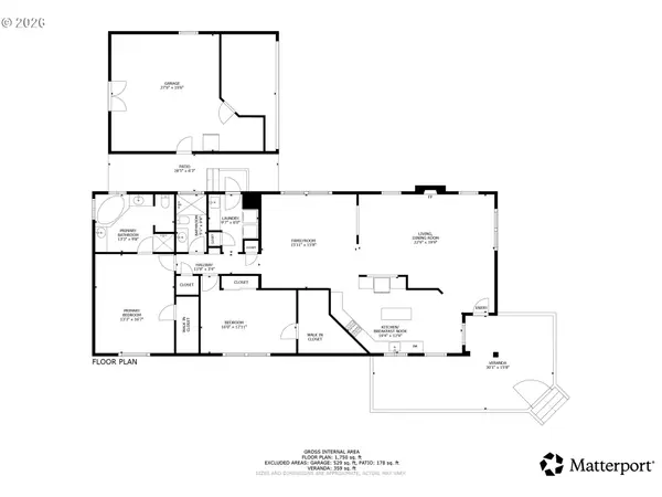
Square Footage 1,740 sqft
Price per Sqft $129
MLS Listing ID 669516927
Style Stories1, Double Wide Manufactured
Bedrooms 2
Full Baths 2
HOA Y/N No
Land Lease Amount 940.0
Year Built 1991
Annual Tax Amount $2,509
Tax Year 2025
Property Sub-Type Manufactured Homein Park
Property Description
Location
State OR
County Marion
Area _173
Zoning MH
Rooms
Basement Crawl Space
Interior
Interior Features Garage Door Opener, Laminate Flooring, Soaking Tub, Washer Dryer
Heating Heat Pump
Cooling Heat Pump
Fireplaces Number 1
Fireplaces Type Electric
Appliance Dishwasher, Free Standing Range, Free Standing Refrigerator, Microwave
Exterior
Exterior Feature Fenced, Porch, Tool Shed, Workshop
Parking Features Detached
Garage Spaces 2.0
View City
Roof Type Composition
Accessibility GarageonMain, MainFloorBedroomBath, OneLevel, Parking, UtilityRoomOnMain, WalkinShower
Garage Yes
Building
Lot Description Corner Lot, Terraced
Story 1
Foundation Pillar Post Pier, Skirting
Sewer Public Sewer
Water Public Water
Level or Stories 1
Schools
Elementary Schools Pringle
Middle Schools Judson
High Schools South Salem
Others
Senior Community Yes
Acceptable Financing Cash, Conventional, FHA, VALoan
Listing Terms Cash, Conventional, FHA, VALoan
Virtual Tour https://my.matterport.com/show/?m=mizuqezf99xc1pupe0qsnms2c&mls=1

NEARBY SCHOOLS & PROPERTIES
GET MORE INFORMATION





