18640 SW PRECIPICE LN Beaverton, OR 97007

UPDATED:
Key Details
Property Type Townhouse
Sub Type Townhouse
Listing Status Active
Purchase Type For Sale
Square Footage 1,733 sqft
Price per Sqft $272
Subdivision Scholls Heights
MLS Listing ID 580043298
Style Townhouse, Tri Level
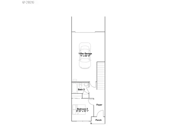
Bedrooms 3
Full Baths 3
HOA Fees $117/mo
HOA Y/N Yes
Year Built 2026
Annual Tax Amount $2,795
Tax Year 2025
Lot Size 1,306 Sqft
Property Sub-Type Townhouse
Property Description
Location
State OR
County Washington
Area _150
Rooms
Basement Crawl Space
Interior
Interior Features Floor3rd, Garage Door Opener, Laundry, Luxury Vinyl Plank, Quartz, Soaking Tub, Washer Dryer
Heating Forced Air95 Plus
Cooling Central Air
Appliance Dishwasher, Disposal, Free Standing Gas Range, Microwave, Plumbed For Ice Maker, Quartz, Stainless Steel Appliance
Exterior
Exterior Feature Covered Deck, Covered Patio
Parking Features Attached
Garage Spaces 1.0
Roof Type Composition
Accessibility MainFloorBedroomBath
Garage Yes
Building
Story 3
Foundation Concrete Perimeter
Sewer Public Sewer
Water Public Water
Level or Stories 3
Schools
Elementary Schools Hazeldale
Middle Schools Mountain View
High Schools Mountainside
Others
Senior Community No
Acceptable Financing Cash, Conventional, VALoan
Listing Terms Cash, Conventional, VALoan
Virtual Tour https://homejab.vr-360-tour.com/e/uEIBmJg-p8g/e

NEARBY SCHOOLS & PROPERTIES
GET MORE INFORMATION





