23820 SW BLACK TORTOISE TER Tualatin, OR 97062

UPDATED:
Key Details
Property Type Townhouse
Sub Type Attached
Listing Status Pending
Purchase Type For Sale
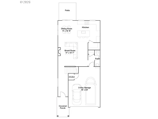
Square Footage 2,004 sqft
Price per Sqft $249
Subdivision Autumn Sunrise
MLS Listing ID 572215422
Style Stories2, Common Wall
Bedrooms 4
Full Baths 2
HOA Fees $164/mo
HOA Y/N Yes
Year Built 2026
Annual Tax Amount $1,654
Tax Year 2025
Lot Size 3,049 Sqft
Property Sub-Type Attached
Property Description
Location
State OR
County Washington
Area _151
Rooms
Basement Crawl Space
Interior
Interior Features Garage Door Opener, Laundry, Luxury Vinyl Plank, Luxury Vinyl Tile, Quartz, Soaking Tub, Wallto Wall Carpet, Washer Dryer
Heating Forced Air95 Plus
Cooling Central Air
Fireplaces Number 1
Fireplaces Type Gas
Appliance Dishwasher, Disposal, Free Standing Gas Range, Free Standing Range, Island, Microwave, Pantry, Plumbed For Ice Maker, Quartz
Exterior
Exterior Feature Fenced, Patio, Sprinkler
Parking Features Attached
Garage Spaces 2.0
Roof Type Composition
Garage Yes
Building
Story 2
Foundation Concrete Perimeter
Sewer Public Sewer
Water Public Water
Level or Stories 2
Schools
Elementary Schools Hawks View
Middle Schools Sherwood
High Schools Sherwood
Others
Senior Community No
Acceptable Financing Cash, Conventional, FHA, VALoan
Listing Terms Cash, Conventional, FHA, VALoan
Virtual Tour https://www.modsy.com/homejourney/embed/lennar/community/726/modelhome/3446/virtualtour/3457

NEARBY SCHOOLS & PROPERTIES
GET MORE INFORMATION





